Elevator
Moving Walkways
XWAY ELEVATOR is a leading Moving Walkways Manufacturer in Ahmedabad, providing efficient people-movement solutions for airports, metro stations, shopping malls, and large commercial spaces. Our systems are also ideal as an airport moving walkway, helping passengers move comfortably with luggage over long distances. Designed for continuous operation, these walkways offer stable speed control, slip-resistant surfaces, and strong structural design.
With a focus on safety, energy efficiency, and smooth performance, XWAY ELEVATOR ensures moving walkways that improve passenger flow and overall convenience in high-footfall environments.
Moving Walkways Specification
Reliable Moving Walkway Systems
Our moving walkways feature advanced safety sensors, durable pallets, and efficient drive systems. They are built to support heavy passenger traffic while ensuring smooth movement, reduced downtime, and long-term operational reliability.
Moving Walkway Specifications
General Specification:
NOTE: Standard (S), Optional (O)
| Application | Details | ||
| Rise H(m) Horizontal Span (0) | ≤6 | ≤7.5 | ≤150 |
| Inclination (°) | 35° | 30° | 0° |
| Step Width (mm) | 600 / 800 / 1000 | 800 / 1000 | |
| Horizontal/Pallet Steps | 2 | 2 or 3* | – |
| Speed (m/s) | 0.5 (S), 0.65 (O) | ||
| Main Power | 380V / 50Hz / 3P | ||
| Balustrade | Tempered Glass 10 mm | ||
| Handrail Bracket | Stainless Steel | ||
| Handrail | Black (S), Green/Red/Yellow/Blue (O) | ||
| Balustrade Height | 900 mm (S), 1000 mm (O) | ||
| Inner, Outer Decking | Hairline Stainless Steel | ||
| Skirting | Hairline Stainless Steel | ||
| Step or Pallets | Stainless Steel (S), One-piece Aluminium (O) | ||
| Landing Plate | Stainless Steel (Anti-Skid), Aluminium Alloy (Anti-Skid) (O) | ||
| Illumination | Lighting under upper & lower landing steps; Skirting lighting; Comb lighting; Handrail lighting (O) | ||
| Indicator | Failure code indicator on control cabinet; Indication on outer decking (O); Running direction indicator on outer decking (O) | ||
| Energy Control | VVVF (O) | ||
| Operation | Emergency Stop Button, Key Switch, Inspection Operation | ||
| Heating Device | To heat the escalator ladder road (O) | ||
| A | B | C | D |
| ≥100 | 80 ~ 120 | ≤120 | 25 ~ 100 |
| Pallet Width | 800 | 1000 | Pallet Width | 800 | 1000 |
| R1 | 32 kN | 36 kN | A | 800 | 1000 |
| R2 | 31 kN | 33 kN | B | 1100 | 1310 |
| R3 | 49 kN | 55 kN | C | 1400 | 1600 |
| R4 | 50 kN | 57 kN | D | 1460 | 1660 |
| R5 | 43 kN | 51 kN | E | 1460 | 1660 |
| Note | Specification | Details | |
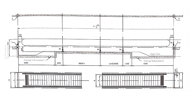
| 1 | The drawing applies to civil construction of single arrangement moving walk with L ≤ 150 m and below. | Type | 0° |
| Speed | 0.5 m/s | ||
| Horizontal Span (L) | Up to 150 mm | ||
| 2 | Size measured by mm; some sizes may change subject to notice. | Inclination | 0° |
| Supporting Force | |||
| R1, R2, R3, R4, R5 | kN | ||
| Power Supply | 380V, 50Hz, 3P AC | ||
| Lighting Supply | 220V, 50Hz, 1P AC |
based on
quality in performance
Ride our elevators to elevate your expectations - where efficiency meets comfort, and sustainability ensures a safe, reliable journey every time.
Efficiency
Comfort
Ecology
Reliable
Safety
Durable
We are committed to quality!!
Elevate your project value with highly efficient elevators by XWAY!
commitment
trust
24x7
contact us
get in touch
Your queries are valuable to us!
clients
valuable client
industries
industries we have served
malls
homes
Hotels
Resident Building
Commercial Building
Industrial Parks





















