Elevator
Escalators
As a trusted Escalators Manufacturer in Ahmedabad,XWAY ELEVATOR offers reliable and efficient escalator solutions designed for smooth and continuous passenger movement. Our escalators are suitable for commercial complexes, malls, metro stations, hospitals, and public buildings. Built with robust mechanical components, advanced safety features, and energy-efficient systems, they ensure long service life and consistent performance.
We focus on passenger comfort, stable operation, and compliance with safety standards. From planning and manufacturing to installation and maintenance, XWAY ELEVATOR delivers escalators that support high traffic flow while maintaining safety, durability, and operational efficiency.
Escalators Specification
High-Performance Escalator Solutions
XWAY ELEVATOR designs escalators with anti-skid steps, emergency stop switches, handrail safety systems, and smooth acceleration control. Our escalator solutions are engineered to handle heavy usage while offering low maintenance and reliable day-to-day operation.
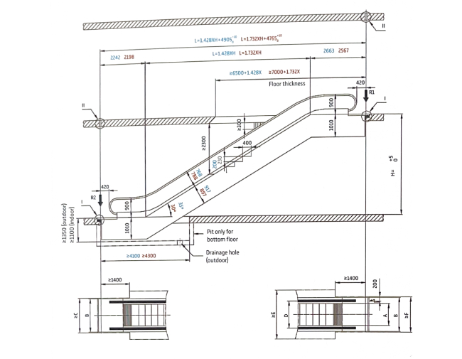
Escalator Specifications
General Specification:
NOTE: Standard (S), Optional (O)
| Application | Details | ||
| Rise H(m) Horizontal Span (0) | ≤6 | ≤7.5 | ≤150 |
| Inclination (°) | 35° | 30° | 0° |
| Step Width (mm) | 600 / 800 / 1000 | 800 / 1000 | |
| Horizontal/Pallet Steps | 2 | 2 or 3* | – |
| Speed (m/s) | 0.5 (S), 0.65 (O) | ||
| Main Power | 380V / 50Hz / 3P | ||
| Balustrade | Tempered Glass 10 mm | ||
| Handrail Bracket | Stainless Steel | ||
| Handrail | Black (S), Green/Red/Yellow/Blue (O) | ||
| Balustrade Height | 900 mm (S), 1000 mm (O) | ||
| Inner, Outer Decking | Hairline Stainless Steel | ||
| Skirting | Hairline Stainless Steel | ||
| Step or Pallets | Stainless Steel (S), One-piece Aluminium (O) | ||
| Landing Plate | Stainless Steel (Anti-Skid), Aluminium Alloy (Anti-Skid) (O) | ||
| Illumination | Lighting under upper & lower landing steps; Skirting lighting; Comb lighting; Handrail lighting (O) | ||
| Indicator | Failure code indicator on control cabinet; Indication on outer decking (O); Running direction indicator on outer decking (O) | ||
| Energy Control | VVVF (O) | ||
| Operation | Emergency Stop Button, Key Switch, Inspection Operation | ||
| Heating Device | To heat the escalator ladder road (O) | ||
| Step Width | 600 | 800 | 1000 | Remark | |||
| R1 (kN) | 35 × L + 155 | 4 × L + 17 | 4.5 × L + 185 | L measured by M | |||
| R2 (kN) | 35 × L + 10 | 4 × L + 1 | 4.5 × L + 115 | ||||
| Rise | 3000 | 3500 | 4000 | 4500 | 5000 | 5000 | 6000 |
| Motor Power 1000 | 5.5 kw | 8 kw | 11 kw | ||||
| Motor Power 800 | 5.5 kW | 8 kW | |||||
| Motor Power 600 | 5.5 kw | ||||||
| Note | Specification | ||
| 1 | The drawing applies to civil construction of single arrangement moving walk with H ≤ 75m and below. | Type | 35° / 30° |
| Speed | 0.5 m/s | ||
| 2 | Size measured by mm; some sizes may change subject to notice. | Horizontal Span (L) | ≤ 75 mm |
| Inclination | 35° / 30° | ||
| 3 | Upper end of the truss should be extended for 417 mm once step width 600 mm chosen. | Supporting Force R1, R2 | kN |
| Power Supply | 380V, 50Hz, 3P AC | ||
| Lighting Supply | 220V, 50Hz, 1P AC |
| A | B | C | D |
| ≥100 | 80~120 | ≤120 | 25~100 |
Standard specification and size:
| Escalator External Width | A | 600 | 800 | 1000 |
| Escalator External Width | B | 1150 | 1350 | 1550 |
| Civil Opening Width | C | 1260 | 1460 | 1660 |
| Distance Between Handrail Centres | D | 838 | 1038 | 1238 |
| Civil Opening Width | E | 1838 | 2038 | 2238 |
| Civil Opening Width | F | 1260 | 1460 | 1660 |
based on
quality in performance
Ride our elevators to elevate your expectations - where efficiency meets comfort, and sustainability ensures a safe, reliable journey every time.
Efficiency
Comfort
Ecology
Reliable
Safety
Durable
We are committed to quality!!
Elevate your project value with highly efficient elevators by XWAY!
commitment
trust
24x7
contact us
get in touch
Your queries are valuable to us!
clients
valuable client
industries
industries we have served
malls
homes
Hotels
Resident Building
Commercial Building
Industrial Parks





















